統領商圈中華路全新店面 (AA6347467)
總價 3,200 萬元 降價通知我
座落 桃園市桃園區中華路
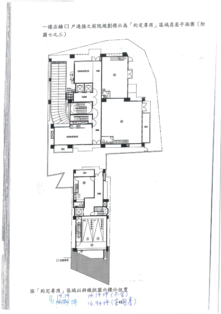
坪數 43.22
地坪 0.00
單價 74.04 萬元
物件型態 店面
用途現況 店面; 空屋
謄本用途 商業用
格局 開放格局
樓層 1-2 / 7樓
面臨路寬 14 米
朝向 座東南向西北
管理費 2,300元 / 月繳
屋齡 7個月
建物結構 鋼筋混凝土造
車位
邊間
採光 1 面
商圈社區 市心窩
公園綠地 南門公園
學校學區 市立桃園國小  市立桃園國中
商場市場 統領百貨、新光三越
特色說明
★火車站超級核心商圈,聚人潮,餐飲業及百貨公司雲集,可做店住
★門前大空地約定使用,客戶停車方便,全新結構,安全與門面一次到位
★新成屋店面,比老店面更好出租,租金更高
★商圈內稀缺大面寬新店面,轉手保值性強
★適合做咖啡廳,美髮業,零售,品牌展示中心
權狀資料
主建物 32.87 附屬建物 0.00
公共設施 10.35 土地面積 0.00
公設車位 0.00 權狀車位 0.00
使用分區 商業區
  1. 坪數=主建物+附屬建物+公共設施(包含公設車位)+權狀車位。
  2. 主建物係指客廳、餐廳、臥房、浴室、廚房等室內面積。
  3. 公共設施係指區分所有建物之全部或部分所有共用之建物面積,像是樓梯間、電梯間、屋頂突出物等。
  4. 上述係由一平方公尺=0.3025坪換算,詳細資料仍以地政機關核發之謄本為準。
龍潭石門加盟店
璟岩企業社
(03)471-1338
感謝點閱,歡迎與我聯絡!
您好,我是陳茂盛。
請撥我的手機 0900-751-179
或加我 LINE 好友
由我為您提供服務。

※ 本網頁所刊登照片如為道路街景或土地示意圖,非廣告標的所在地僅供參考,實際狀況請依使用執照或謄本所載為準。
統領商圈中華路全新店面,桃園市桃園區中華路
統領商圈中華路全新店面,桃園市桃園區中華路
統領商圈中華路全新店面,桃園市桃園區中華路
統領商圈中華路全新店面,桃園市桃園區中華路
統領商圈中華路全新店面,桃園市桃園區中華路
統領商圈中華路全新店面,桃園市桃園區中華路
統領商圈中華路全新店面,桃園市桃園區中華路
統領商圈中華路全新店面,桃園市桃園區中華路
統領商圈中華路全新店面,桃園市桃園區中華路
統領商圈中華路全新店面,桃園市桃園區中華路
統領商圈中華路全新店面,桃園市桃園區中華路
統領商圈中華路全新店面,桃園市桃園區中華路
統領商圈中華路全新店面,桃園市桃園區中華路
統領商圈中華路全新店面,桃園市桃園區中華路

資料處理中,請稍等。